Planning permission has been granted for the construction of two semi detached dwellings with associated parking spaces. Full plans can be seen online. Planning Application number PA16/07462.
The proposed dwellings will have a kitchen dining room, a living room and cloakroom on the ground floor....
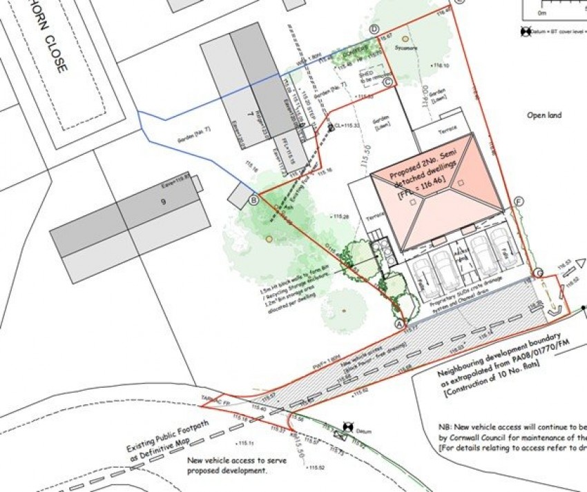
Planning permission has been granted for the construction of two semi detached dwellings with associated parking spaces. Full plans can be seen online. Planning Application number PA16/07462.
The proposed dwellings will have a kitchen dining room, a living room and cloakroom on the ground floor. Upstairs there is proposed to be three bedrooms and a family bathroom.
Externally there is off road parking for two cars and a garden/terrace to the rear of one property and to the side of the other.
New vehicle access is to be created onto Pengover Parc and alterations to existing pedestrian access into adjoining open land.
Excellent access is available to a wide range of amenities to include educational facilities and also to transport links.